



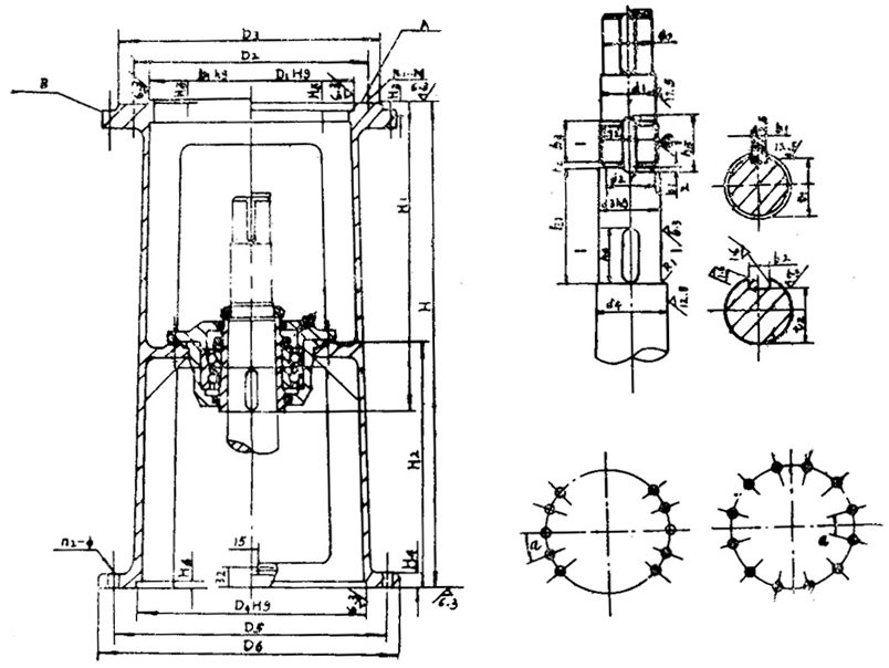
机架代号 | 标准图号 | H | H1 | H2 | H3 | H4 | H5 | H6 | 输入端接口 | 输出端接口 | 轴承型号 | 机架总量 (kg) | |||||||
D1 | D2 | D3 | n1-M | D4 | D5 | D6 | a | n2-ф | |||||||||||
DJ-30A B | CD130B7·1 | 550 | 320 | 300 | 15 | 20 | 4 | 6 | A140 B200 | A160 B230 | A190 B260 | A4-M10 B6-M12 | 240 | 285 | 315 | 20 | 10-ф14 | 46210 | 46 |
DJ-35 A | CD130B7·2 | 600 | 334 | 340 | 15 | 20 | 5 | 6 | 170 | 200 | 230 | 6-M10 | 260 | 320 | 360 | 20 | 10-ф14 | 46212 | 65 |
DJ-40 B | CD130B7·3 | 600 | 334 | 340 | 15 | 20 | 4 | 6 | 230 | 260 | 290 | 6-M12 | 260 | 320 | 360 | 20 | 10-ф14 | 46212 | 65 |
DJ-45 A | CD130B7·4 | 600 | 338 | 340 | 15 | 24 | 5 | 6 | 200 | 230 | 260 | 6-M10 | 260 | 320 | 360 | 20 | 10-ф14 | 46214 | 72 |
DJ-55A B | CD130B7·5 | 660 | 372 | 370 | 20 | 24 | A6 B5 | 6 | 270 | A310 B305 | 340 | A6-M10 B8-M16 | 325 | 400 | 435 | 30 | 12-ф14 | 46216 | 105 |
DJ-65 A | CD130B7·6 | 720 | 447 | 370 | 20 | 24 | 6 | 6 | 316 | 360 | 400 | 8-M12 | 350 | 420 | 460 | 30 | 12-ф18 | 46219 | 146 |
DJ-70A B | CD130B7·7 | 720 | 447 | 370 | 20 | 24 | A6 B5 | 6 | A316(320) B315 | 360 | 400 | A8-M12 B8-M16 | 350 | 420 | 460 | 30 | 12-ф18 | 46219 | 146 |
DJ-80A B | CD130B7·8 | 785 | 495 | 405 | 25 | 28 | A6 B5 | 8 | A345 B360 | A390 B410 | A430 B460 | A8-M16 B8-M20 | 380 | 455 | 495 | 30 | 12-ф18 | 46222 | 189 |
DJ-90A | CD130B7·9 | 805 | 519 | 405 | 25 | 28 | 7 | 8 | 400 | 450 | 490 | 12-M16 | 430 | 510 | 555 | 30 | 12-ф23 | 46224 | 233 |
DJ-100A B | CD130B7·10 | 820 | 535 | 410 | 25 | 28 | A9 B5 | 10 | A455(460) B470 | 520 | 580 | 12-M20 | 480 | 560 | 600 | 22.5 | 16-ф23 | 46228 | 290 |
机架代号 | h1 | h2 | h3 | h4 | h5 | d0 | d1 | d2 | M2 | d3 | d4 | R1 | t1 | b1 | t2 | b2 |
DJ-30A B | 103 | 3 | 13 | 36 | 22 | 30 | 32 | 32.8 | 35×1.5 | 35 | 40 | 1 | 31 | 6 | 300 -0.2 | 100 -0.036 |
DJ-35 A | 113 | 3 | 13 | 40 | 22 | 35 | 42 | 42.8 | 45×1.5 | 45 | 50 | 1 | 41 | 6 | 39.50 -0.2 | 140 -0.043 |
DJ-40 B | 113 | 3 | 13 | 40 | 22 | 40 | 42 | 42.8 | 45×1.5 | 45 | 50 | 1 | 41 | 6 | 39.50 -0.2 | 140 -0.043 |
DJ-45 A | 113 | 3 | 15 | 45 | 28 | 45 | 47 | 47.8 | 50×1.5 | 50 | 65 | 1 | 46 | 8 | 44.50 -0.2 | 140 -0.043 |
DJ-55A B | 118 | 4 | 15 | 50 | 28 | 55 | 57 | 57 | 60×2 | 60 | 65 | 1 | 56 | 8 | 530 -0.2 | 180 -0.043 |
DJ-65 A | 143 | 4 | 18 | 56 | 32 | 65 | 71 | 72 | 75×2 | 75 | 80 | 1 | 69 | 10 | 67.50 -0.2 | 200 -0.052 |
DJ-70A B | 143 | 4 | 18 | 56 | 32 | 70 | 71 | 72 | 75×2 | 75 | 80 | 1 | 69 | 10 | 67.50 -0.2 | 200 -0.052 |
DJ-80A B | 163 | 4 | 18 | 70 | 32 | 80 | 81 | 82 | 85×2 | 85 | 90 | 1.5 | 79 | 10 | 760 -0.2 | 220 -0.052 |
DJ-90A | 168 | 4 | 20 | 80 | 36 | 90 | 91 | 92 | 95×2 | 95 | 110 | 1.5 | 89 | 12 | 860 -0.2 | 250 -0.052 |
DJ-100A B | 178 | 4 | 24 | 90 | 42 | 100 | 111 | 112 | 115×2 | 115 | 125 | 2 | 109 | 14 | 1040 -0.2 | 320 -0.062 |